WWW.LT1SWAP.COM

[ HOME ]    [ PCM PROGRAMMING ]   [ WIRE HARNESS INFO  ]     [ VORTEC 8100 ]   [ VORTEC 6.0L ]   [ '62 IMPALA ]   

['67 CHEVY C10]     [GM ECM TUNING]    [ LINKS ]    [ PHOTO GALLERY ] 

 

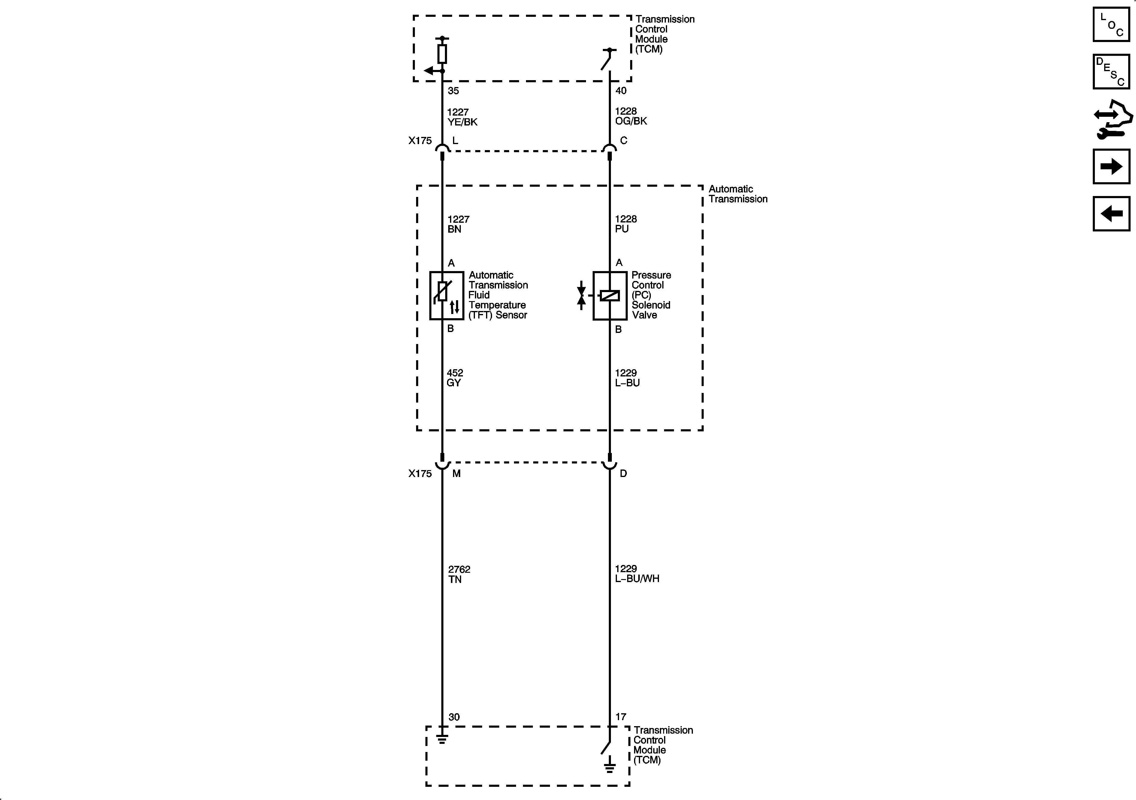
Starting in 2009, 4L60E, 4L65E, 4L70E no longer has a TFP (Trans Fluid Pressure Switch) assembly, and is replaced by the trans range sensor.  Prior to 2009, the range sensor was located on the outside of the trans, over the manual shaft.  It is now located INSIDE the trans.  Below are 2009 schematics for the 4L60E in a C/K truck platform.

 

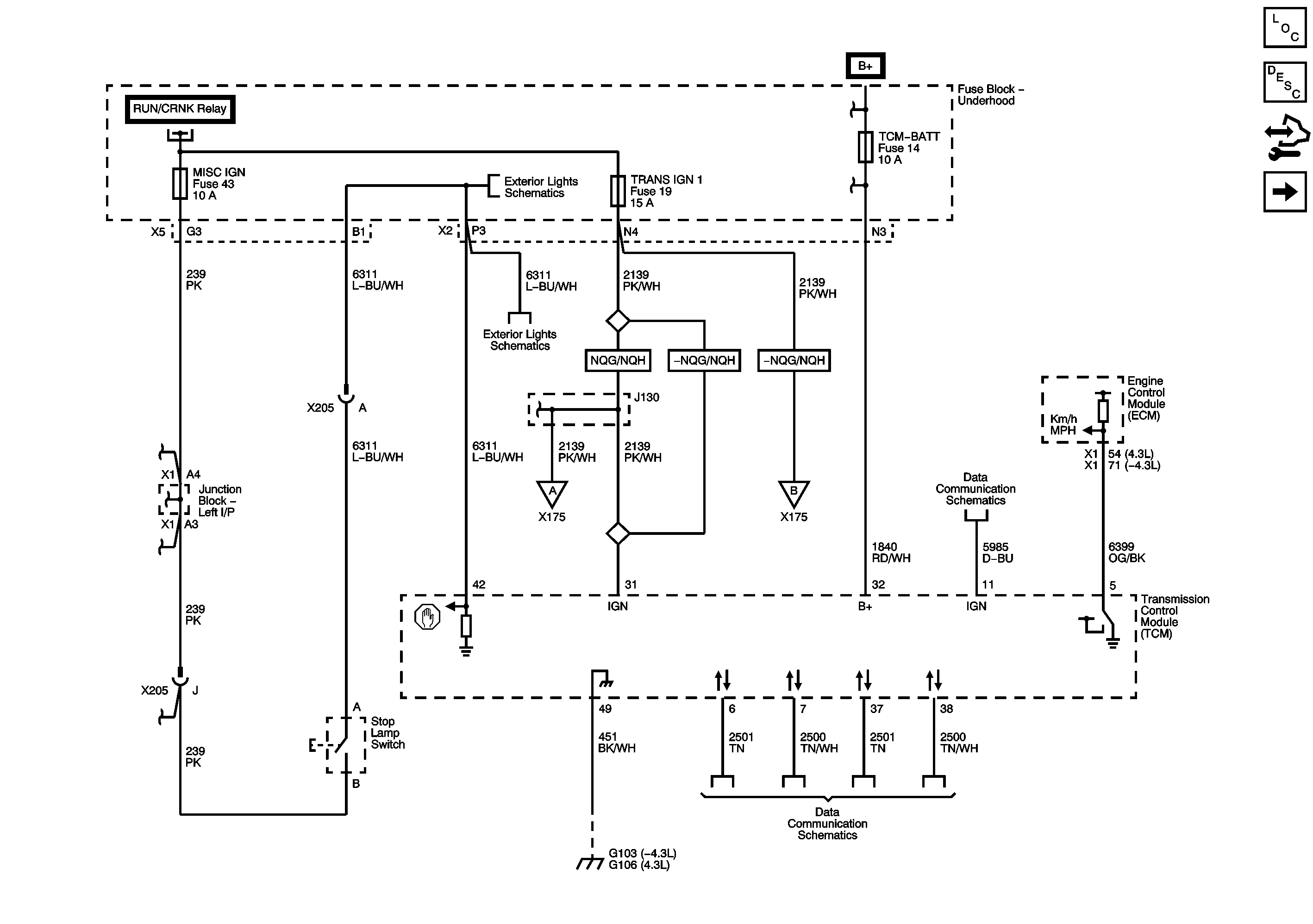
Module Power, Ground, Data

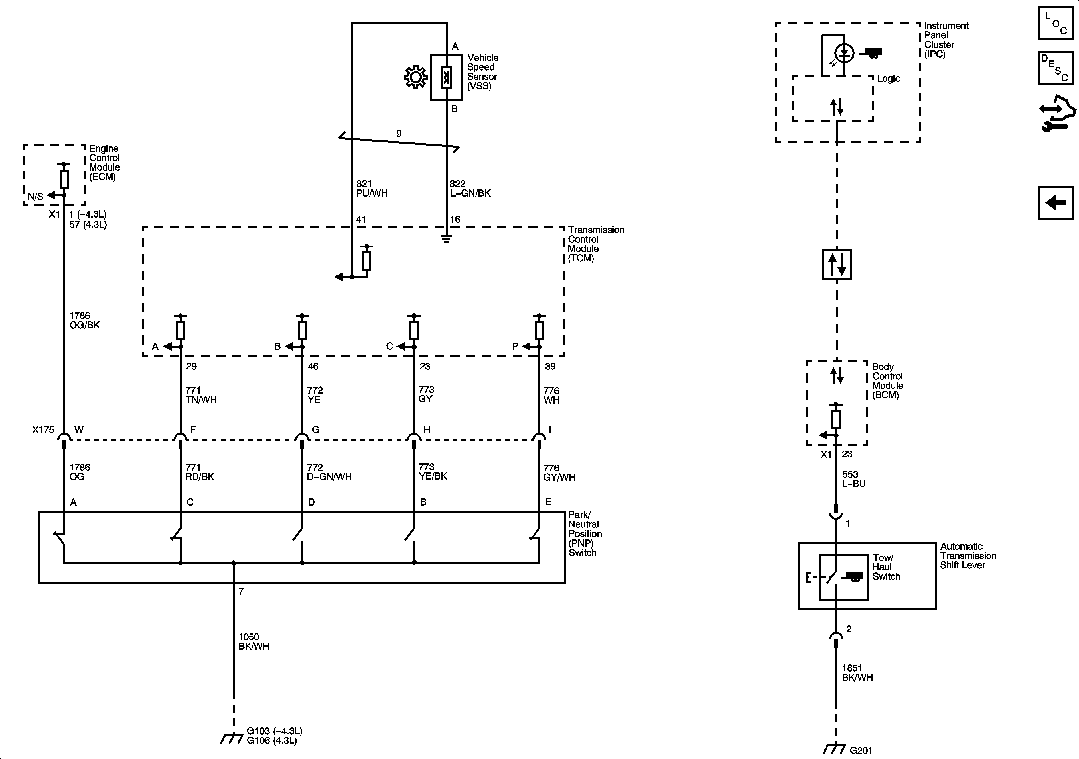
PNP, VSS, Tow/Haul

Pressure & Temp

Shift Controls

 

Pinouts

X175 Engine Harness to Transmission Internal Harness (M30)
       
                         
Object Number: 516609
 
     
       
       
       
       
       
       
       
       
       
       
                         
       
       
X175 Engine Harness to Transmission Internal Harness (M30)
Pin Wire Circuit Function
A 0.5 L-GN 1222 1-2 Shift Solenoid Valve Control
B 0.5 YE/BK 1223 2-3 Shift Solenoid Valve Control
C 0.5 OG/BK 1228 PC Solenoid Valve High Control (Sol. A)
D 0.5 L-BU/WH 1229 PC Solenoid Valve Low Control (Sol. A)
E 0.5 PK/WH 2139 Ignition 1 Voltage
F 0.35 TN/WH 771 Transmission Range Signal A
G 0.35 YE 772 Transmission Range Signal B
H 0.35 GY 773 Transmission Range Signal C
J 0.35 WH 776 Transmission Range Signal P
K 0.35 OG 1983 AT ISS High Signal
L 0.5 YE/BK 1227 TFT Sensor Signal
M 0.35 TN 2762 Low Reference
N 0.5 BK/WH 451 Ground
P–S Not Used
T 0.5 TN/BK 422 TCC Solenoid Valve Control
U 0.5 BN 418 TCC PWM Solenoid Valve Control
V 0.35 L-BU 1984 Transmission Turbine Speed Switch Low Reference
W 0.35 OG/BK 1786 Transmission Park/Neutral Signal